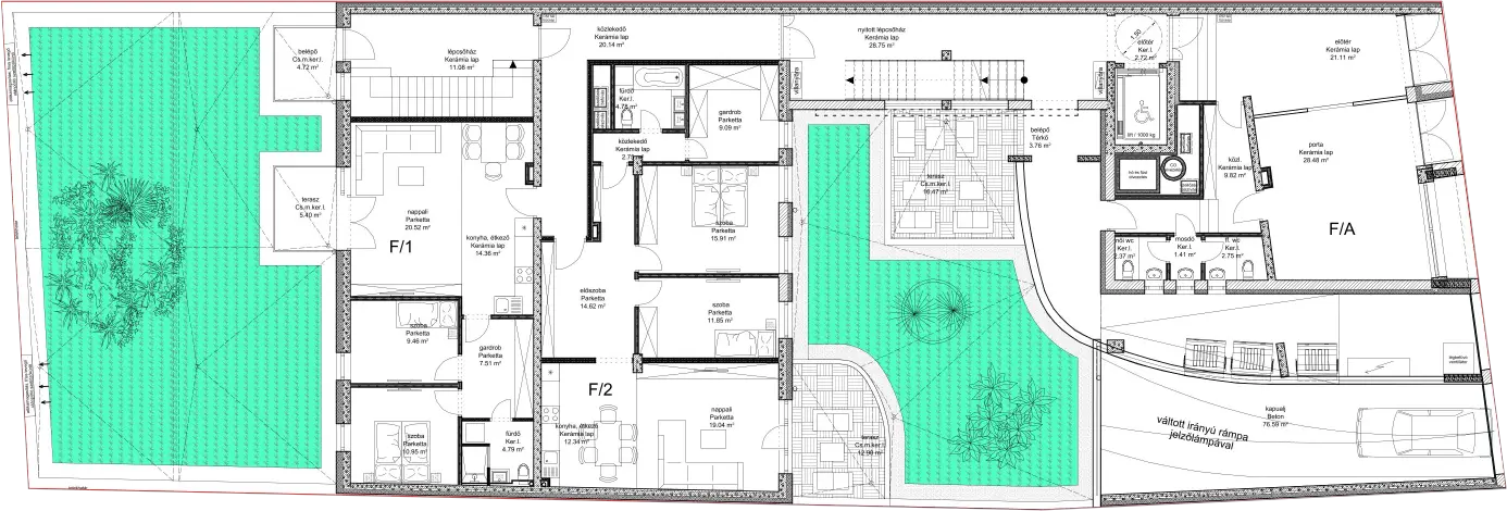
Földszinti lakások

F1
F1 lakás
F2
F2 lakás