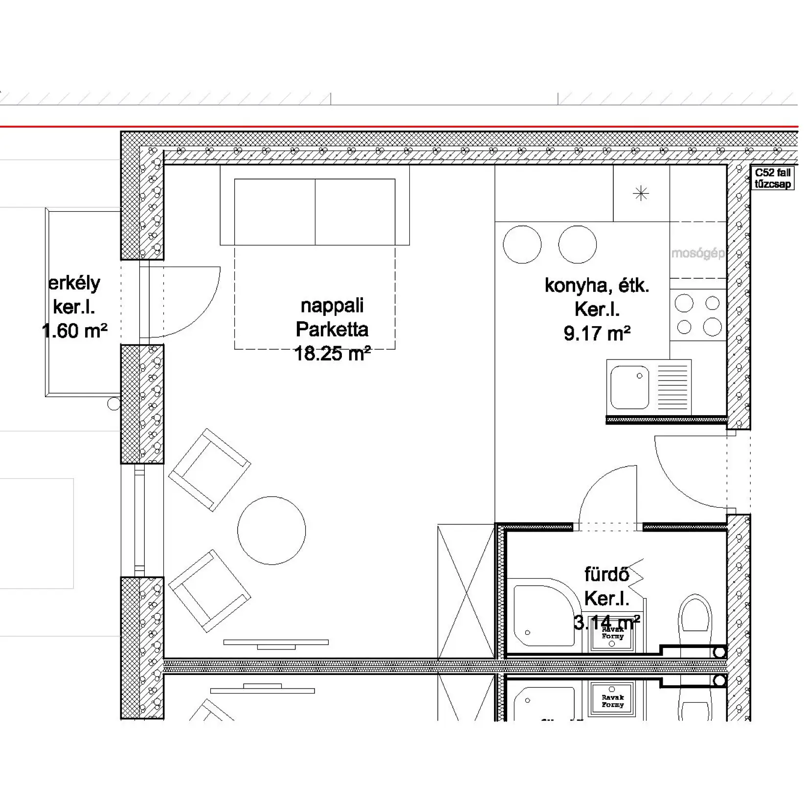
E1/1 lakás
Szint: 1. emelet
Terület: 30,55 m²
Szoba: 18,44 m²
Fürdő: 3,19 m²
Nappali: 18,47 m²
Konyha, étkező: 9,32 m²
Gardrób: 9,17 m²
Kamra: 3,14 m²
Erkély: 3,2 m²

Jelen lakás alaprajza a kiviteli tervezés munkaközi állapotát tükrözi, a beruházó a változtatási jogát fenntartja. A nettó alapterületi adatok vakolatlan falak közötti méretek, melyek a kiviteli tervezés során változhatnak. Az információk tájékoztató jellegűek, nem képezik az adásvételi szerződés mellékletét.