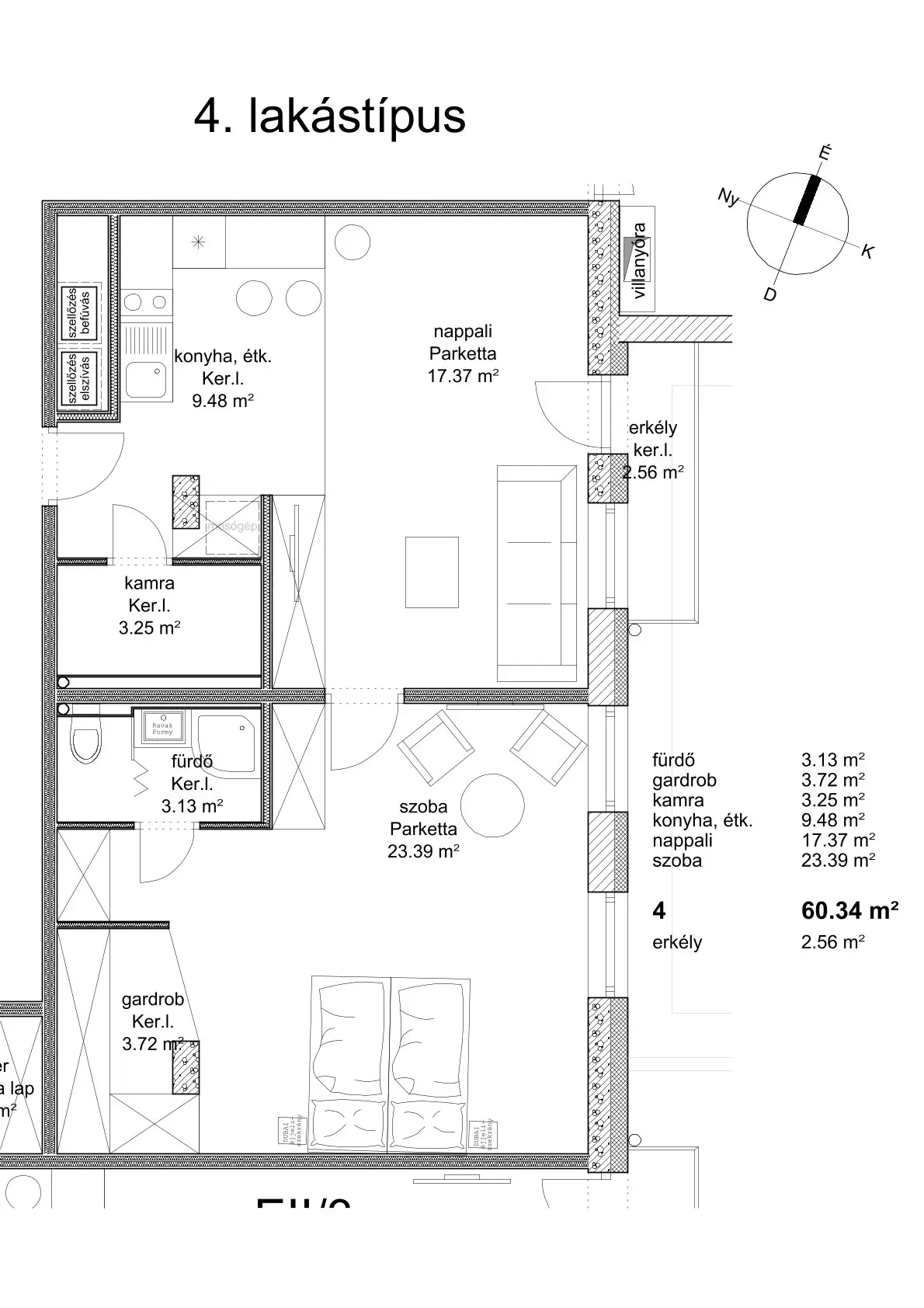
Jelen lakás alaprajza a kiviteli tervezés munkaközi állapotát tükrözi, a beruházó a változtatási jogát fenntartja. A nettó alapterületi adatok vakolatlan falak közötti méretek, melyek a kiviteli tervezés során változhatnak. Az információk tájékoztató jellegűek, nem képezik az adásvételi szerződés mellékletét.
Jelentkezz, hogy az elsők között választhass új épületünk lakáskínálatából!
Budapest VIII. kerület
info@campusresidences.hu
+36 00 000 0000
A honlap teljes tartalma, beleértve annak valamennyi szöveges, képi, illetve grafikai eleme a fejlesztő tulajdonát képezi, annak felhasználása csak előzetes írásbeli engedélyével lehetséges. A honlapon szereplő adatok tájékoztató jellegűek, nem minősül ajánlattételnek. A változtatás jogát a fejlesztő fenntartja.
Ez a weboldal sütiket használ a felhasználói élmény javítására. Az „Elfogadom” gombra kattintva hozzájárul a használatukhoz.