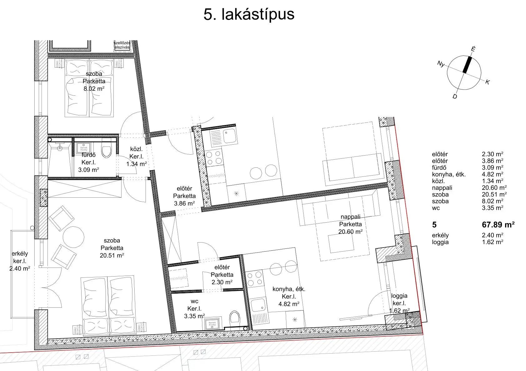
E1/5 lakás
Szint: 1. emelet
Terület: 67,89 m²
Szoba: 20,51 m²
Fürdő: 3,09 m²
Nappali: 20,60 m²
Konyha, étkező: 4,82 m²
Gardrób: 8,95 m²
Közlekedő: 1,34 m²
Kamra: 3,35 m²
Erkély: 4,02 m²
Szoba: 8,02 m²

Jelen lakás alaprajza a kiviteli tervezés munkaközi állapotát tükrözi, a beruházó a változtatási jogát fenntartja. A nettó alapterületi adatok vakolatlan falak közötti méretek, melyek a kiviteli tervezés során változhatnak. Az információk tájékoztató jellegűek, nem képezik az adásvételi szerződés mellékletét.